Developments

Commercial Development

 

The goal of property development is to give the best return on investment.  Every element of the process from land acquisition, to architectural design, planning permissions, building regulations and project management impacts directly on the profitability of any commercial development.

 

We have an industry wide experience base, built on Architecture, construction management, civil / structural engineering , planning, regulations and property development.  Our experience with the planning process, project management and design gives us the market knowledge and the edge in reducing cost, making not only an attractive but an economical and practical design a reality. Combined we offer a powerful combination to make the most of your investment potential.

 

Whatever stage of the development process you're at right now, talk to our team and see how we can increase your return.

 

 

 

Private Development

 

We offer private clients the same exacting standards we apply for commercial clients. Bringing together the same levels of excellence in commercial property development, we help you determine the most advantageous development route for your property.

 

As property developers ourselves, we know the market, the process, and the sources that provide cost-effective results that make the most of your property.  Whether your development is for lifestyle or resale purposes, our team can guide you through a range of creative options that deliver to your expressed goals.

 

Our services are bespoke and completely flexible.  We work to a wide range of budgets and our experience more often than not, provides significant cost savings without compromising quality or sacrificing your aspirations. Talk to our team, and see how we can make more of your investment.

 

 

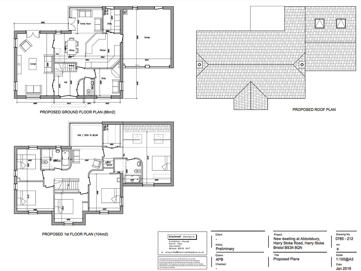
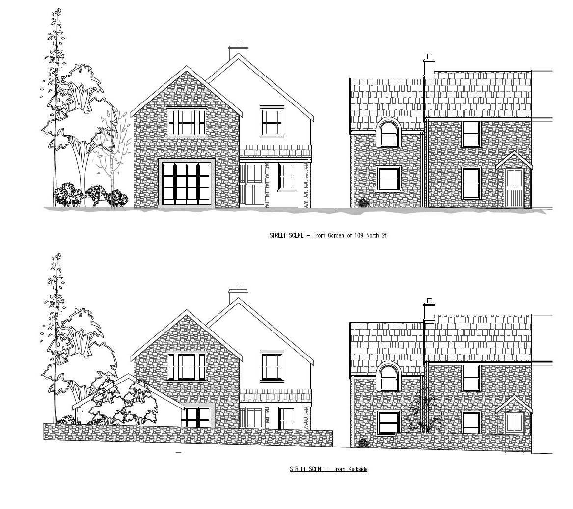
You can see a small selection of our extensive development work below.

Contact Us

Call: 01454 602373 or 07976 686 605

Blackwell Creative

Exhibition House, North View, Soundwell, Bristol, BS16 4NT

 

enquiries@blackwellcreative.co.uk

Copyright © 2021 All Rights Reserved Blackwell Creative

Call: 07976 686 605

enquiries@blackwellcreative.co.uk